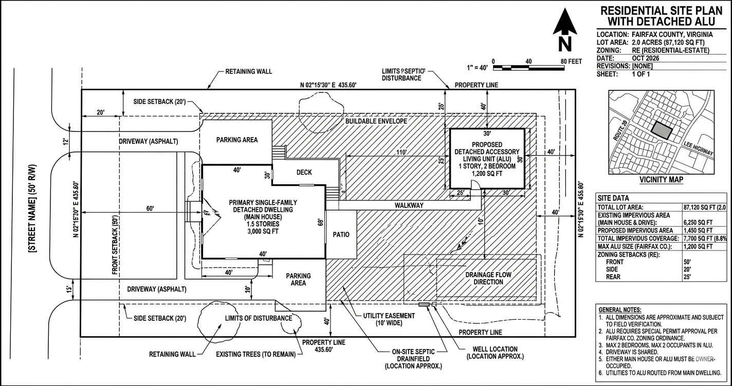
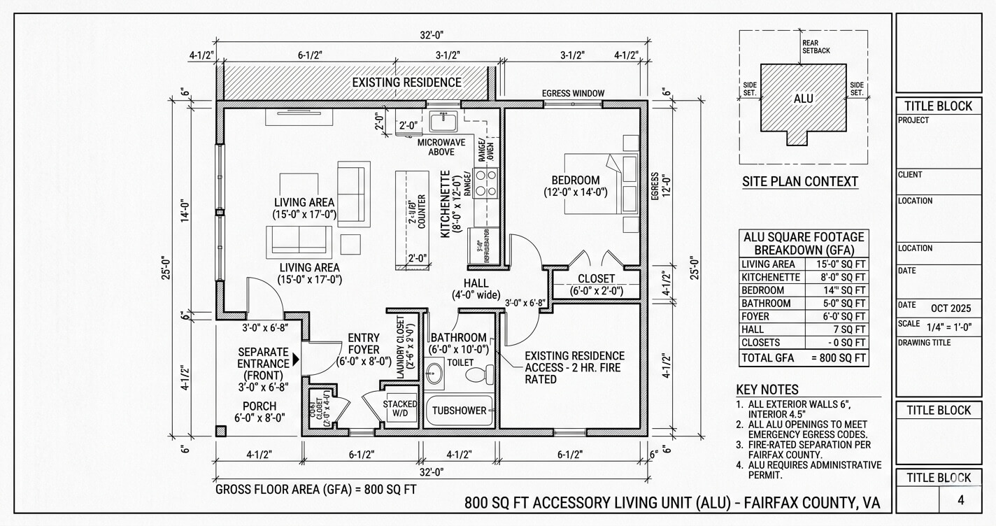
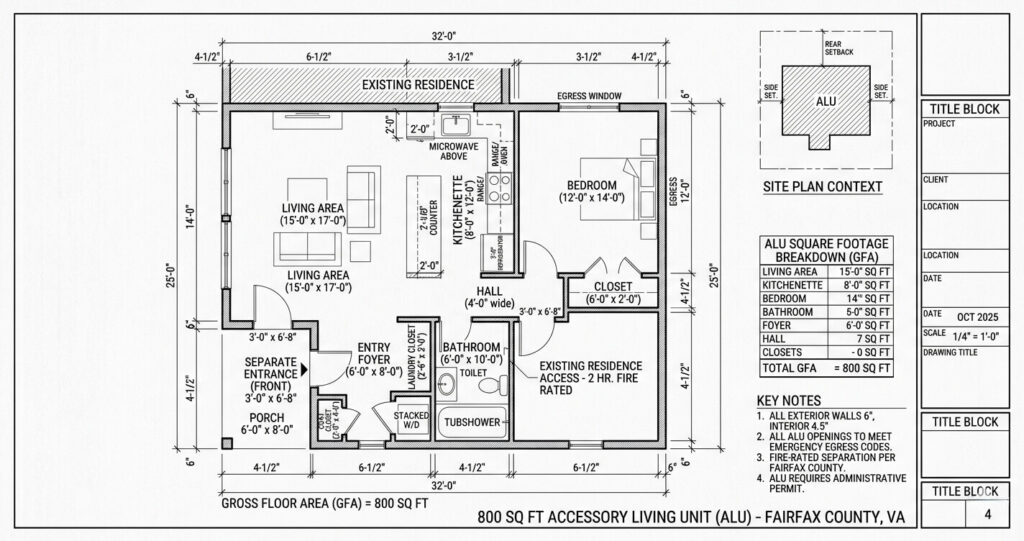
Accessory Living Unit Fairfax County VA: Rules, Permits & 2026 Updates Guide