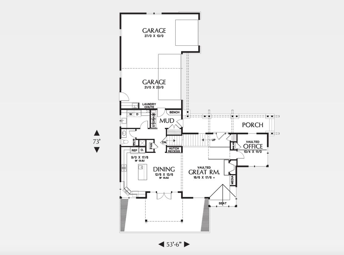
US Home Design Build specializes in remodeling, design and build Craftsman homes in Northern Virginia.
Embracing craftsmanship, simplicity, and natural materials, Craftsman styles plans are inviting, often with shingle siding and stone details. Open porches with overhanging beams and rafters are common to this look.






